Spoelbak Etagon 700-U
- kleur: aluminium
- materiaal: SILGRANIT PuraDur
- montage: onder de plaat
- spoelbak zonder afdruipgedeelte
- spoelbak met “trede” voor het plaatsen van Etagon rails
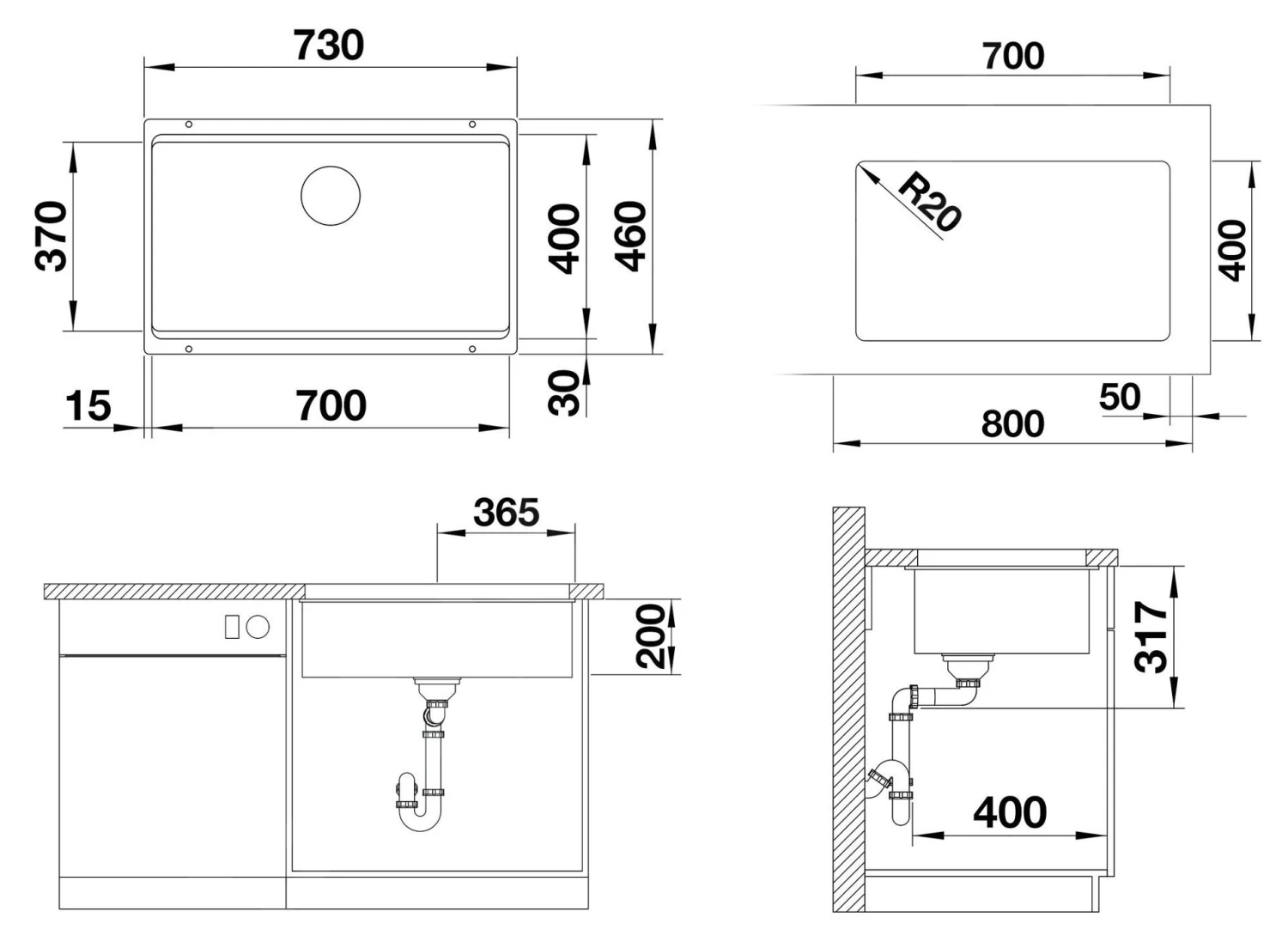
- minimumbreedte van de onderkast 800 mm
- totale afmeting van de spoelbak: 730 x 460 mm
- spoelbakdiepte: 200 mm
- met overloop C-owerflow
- afvoersysteem InFino – de uitlaat wordt gesloten en geopend door de zeef te sluiten
Inclusief:
- 2 Etagon verschuifbare rails
- 3 1/2 “ zeefventiel InFino
- bevestigingsset























Beoordelingen
Er zijn nog geen beoordelingen.